4280 Red Mountain Road Unit# 311 Rossland V0G1Y0
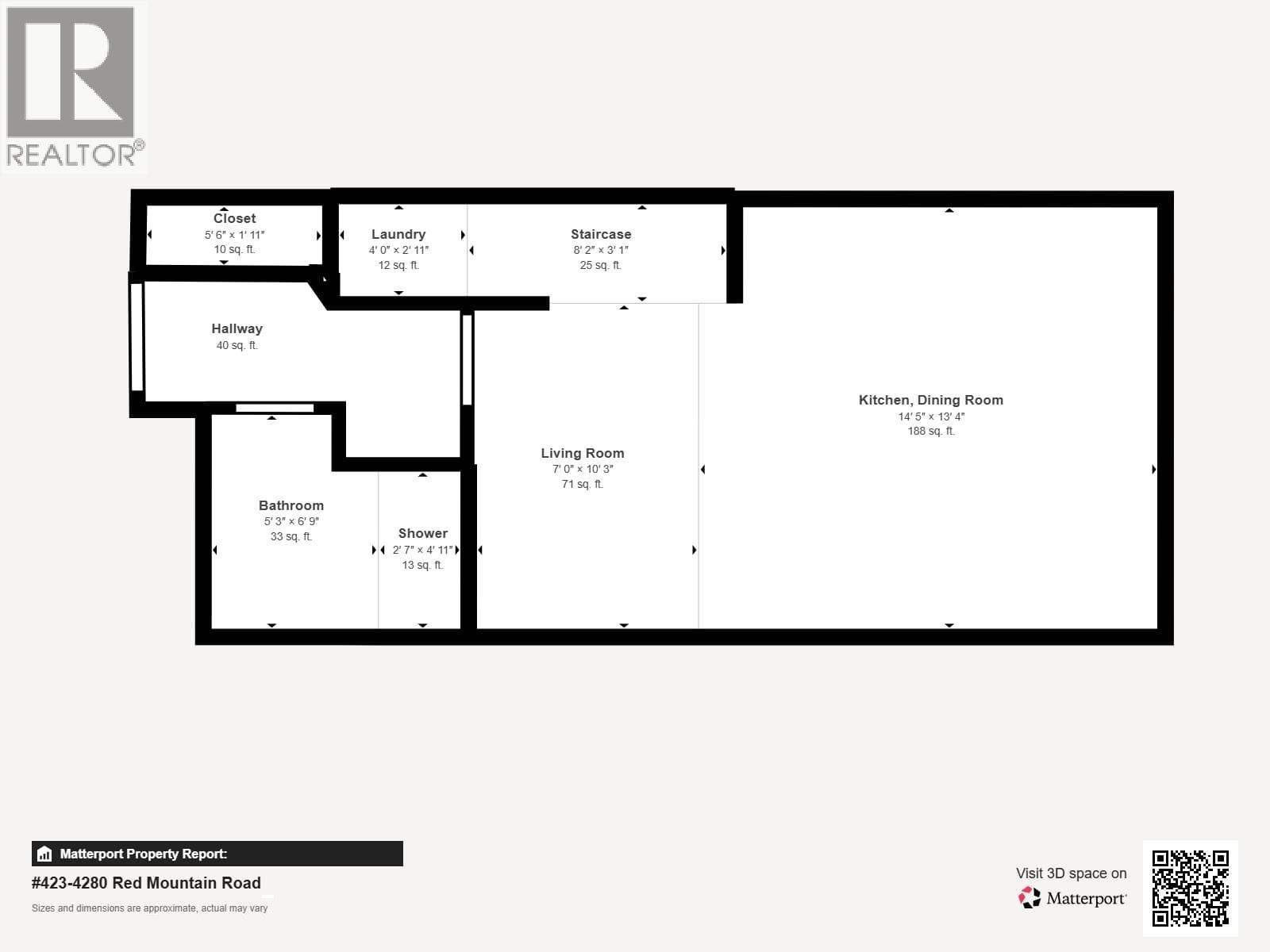
Welcome to The Crescent at Red, a brand-new luxury development at the base of Red Mountain Resort. This stylish studio is the perfect mountain retreat, featuring ample storage space, in-suite laundry, and comes fully furnished—including linens and dishes—so you can move in and start enjoying the resort lifestyle right away. Or if you're looking for an investment opportunity, complete rental management is offered by Red Mountain Resort Lodging! The building boasts fantastic amenities such as underground parking, a fully equipped gym, and a communal outdoor BBQ area and gorgeous Alice Lounge, ideal for after a day on the slopes or exploring the area. And if you must, there's even a co-working space. Pets are also welcome, making it easy to bring your furry friend along to enjoy the mountain life. Located just a short walk from resort shops and restaurants, this studio offers the best of convenience and comfort. Red Mountain Resort is perfect for year-round outdoor enthusiasts, offering skiing and snowboarding in the winter and hiking, biking, and more in the summer. Don’t miss the chance to own this turnkey studio in one of Rossland's most desirable new builds! All measurements approx. (id:56537)
Data from sources believed reliable but should not be relied upon without verification. All measurements are approximate.
Courtesy of : Mountain Town Properties Ltd.
4280 Red Mountain Road Unit# 311 Rossland V0G1Y0
This site nor its owners, REALTOR® or Brokerage assume any responsibility for the accuracy of its content. You are strongly advised to perform your due diligence.
Use of this site is bound by the Website Terms of Use. The term REALTOR® used under license from CREA.